The Westport
Elevations
Each of our home elevations offers increasing levels of features and upgrades. As you move up, you’ll enjoy more stone accents, enhanced finishes, expanded options, and elevated details that make your home truly stand out.



Build History
Details




The Westport
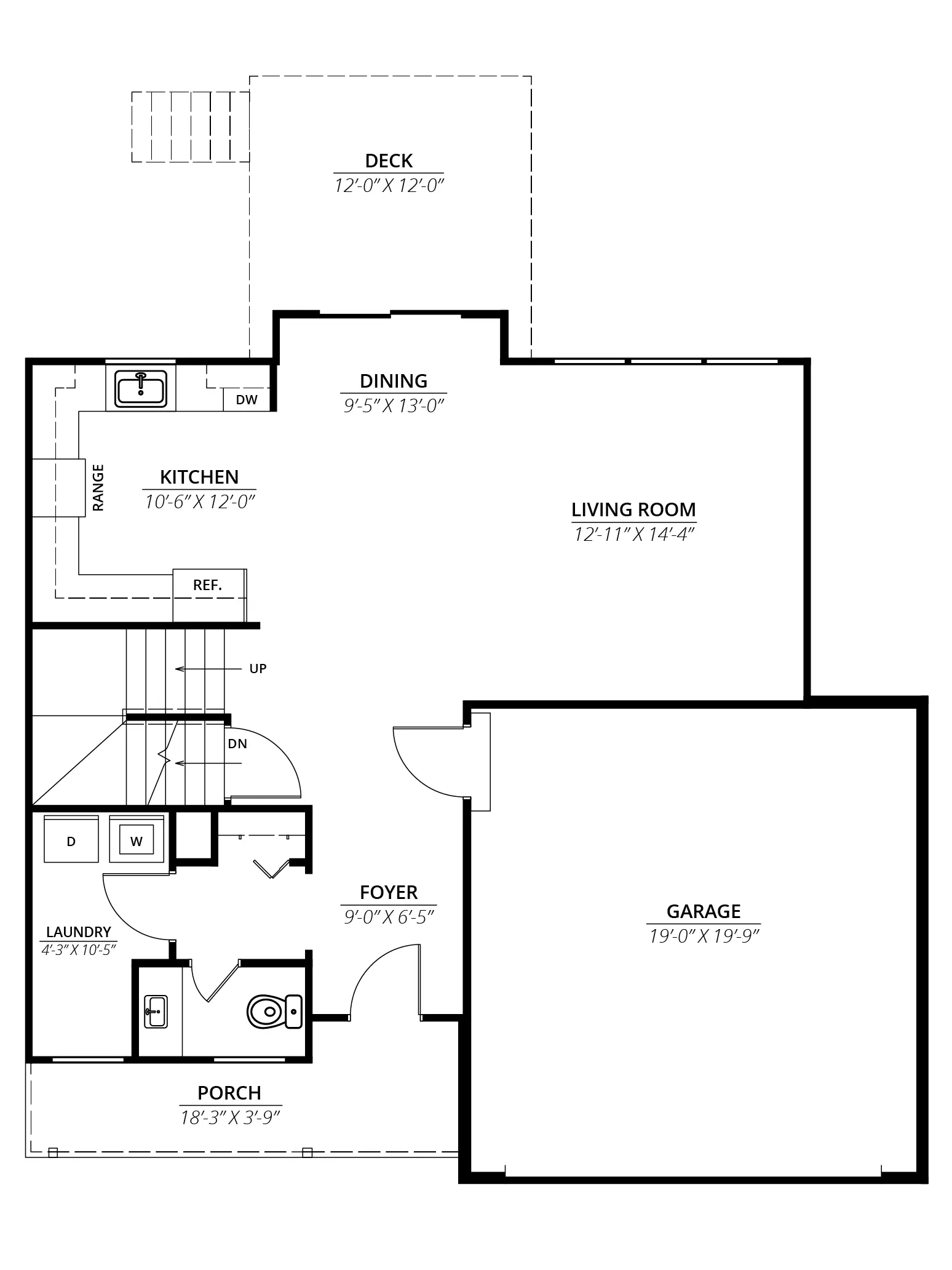
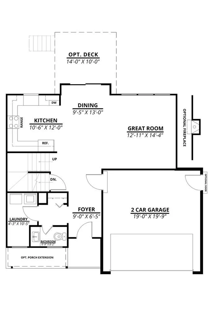
A refined two-story home with space where it matters most. At 1,648 square feet with three bedrooms and 2.5 baths, The Westport opens with a flowing main level that unites kitchen, dining, and living for easy gatherings, while bedrooms upstairs provide a calm retreat. An included basement adds valuable square footage from day one—perfect for storage or a future lounge. Starting at $310,100, The Westport combines flexibility, function, and value.
Available In These Communities
Build On Your Land

The Westport
A refined two-story home with space where it matters most. At 1,648 square feet with three bedrooms and 2.5 baths, The Westport opens with a flowing main level that unites kitchen, dining, and living for easy gatherings, while bedrooms upstairs provide a calm retreat. An included basement adds valuable square footage from day one—perfect for storage or a future lounge. Starting at $310,100, The Westport combines flexibility, function, and value.
























