The Stratford
Elevations
Each of our home elevations offers increasing levels of features and upgrades. As you move up, you’ll enjoy more stone accents, enhanced finishes, expanded options, and elevated details that make your home truly stand out.



Build History
Details



The Stratford
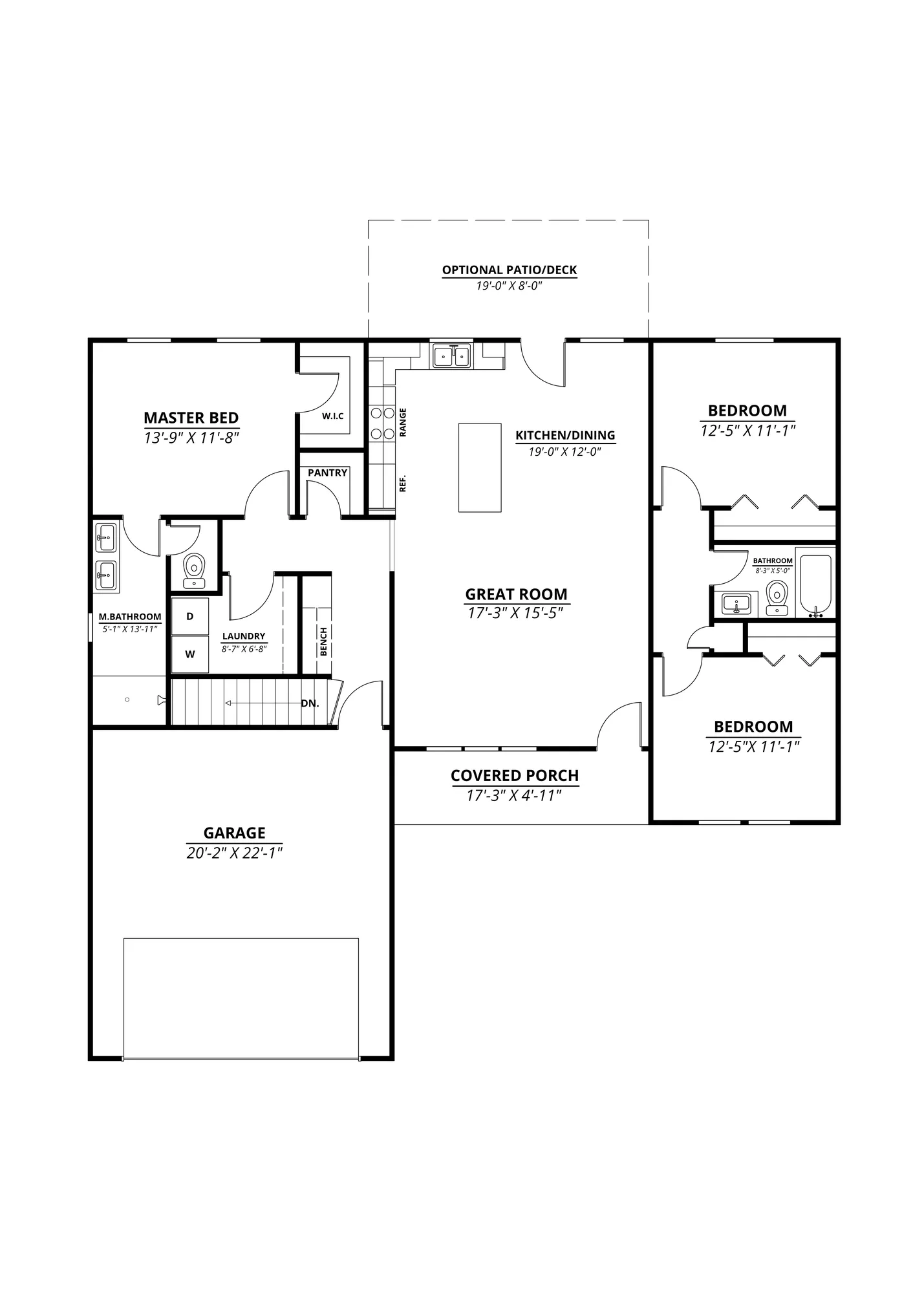
A captivating ranch home that marries timeless character with modern ease. Distinguished by handsome stone accents and a welcoming covered porch, The Stratford makes a striking first impression. Inside, the 1,450-square-foot layout is thoughtfully maximized, featuring three bedrooms and two full baths arranged around a bright, open-concept living area. Whether you’re gathering in the heart of the home or enjoying the privacy of the owner’s suite, The Stratford offers a perfect blend of curb appeal, comfort, and functional design.
Available In These Communities
Build On Your Land

The Stratford
A captivating ranch home that marries timeless character with modern ease. Distinguished by handsome stone accents and a welcoming covered porch, The Stratford makes a striking first impression. Inside, the 1,450-square-foot layout is thoughtfully maximized, featuring three bedrooms and two full baths arranged around a bright, open-concept living area. Whether you’re gathering in the heart of the home or enjoying the privacy of the owner’s suite, The Stratford offers a perfect blend of curb appeal, comfort, and functional design.






